Bifamiliare in vendita

Poggio Renatico, Via XX Settembre
€ 260.000
6 locali 6 locali
239 Mq 239 Mq
2 bagni 2 bagni

Bifamiliare in vendita

Poggio Renatico, Via XX Settembre

Descrizione annuncio

Immobiliare Tecnocasa Poggio Renatico propone villa bifamiliare a circa 1 km dal centro del Paese.

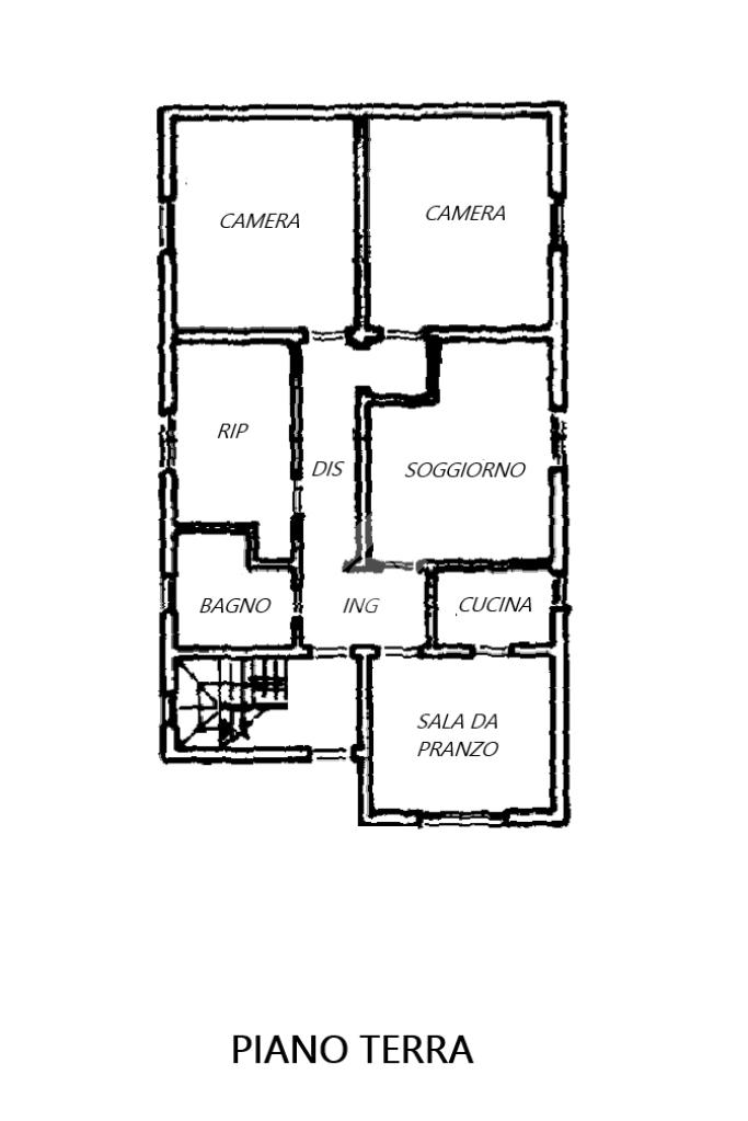
L'immobile comprende due appartamenti indipendenti, ciascuno di circa 103 mq, collegati da scala interna.

La composizione dell'appartamento al piano terra è la seguente: ingresso, sala da pranzo con retro cucina, soggiorno, bagno con doccia, disimpegno, due camere da letto e vano ripostiglio che può essere adibito a terza camera.

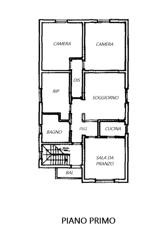
La disposizione degli ambienti dell'appartamento del piano primo, è la medesima della soluzione del piano terra: ingresso, sala da pranzo con retro cucina, soggiorno, bagno con doccia, disimpegno, due camere da letto, vano ripostiglio che può fungere da terza camera.

Presente corte privata, comune ai due appartamenti, di circa 200 mq con annesse autorimessa, cantine e ripostigli.

L'immobile, complessivamente, si presenta in buono stato di manutenzione.

Le importanti ristrutturazioni sono state effettuate in diverse fasi:

anni '80 pavimenti e impianti,

2009 rifacimento del tetto con guaiana,

2015 pavimentazione esterna e fognatura,

2019 installazione di infissi in PVC,

2020 tinteggiatura del fabbricato.

Optionals: porta blindata, zanzariere, inferiate, clima con pompa di calore.

Soluzione ottimale per genitori-figli o nuclei familiari numerosi. Per maggiori informazioni o fissare un appuntamento contattataci allo 0532829748

Mostra tutto

Nelle vicinanze

Trasporto pubblico Trasporto pubblico
stazione di Poggio Renatico
stazione di Poggio Renatico
480 m
Poggio Renatico XX Settembre
Poggio Renatico XX Settembre
140 m
Poggio Renatico Cimitero
Poggio Renatico Cimitero
360 m
Scuole Scuole
Scuole
810 m
Farmacia Farmacia
Farmacia San Michele
670 m
Supermercati Supermercati
coop
700 m
Lidl
1,4 Km
Bar Bar
Bar
580 m
Mostra tutto

Caratteristiche

Rif.:
61194225
Piano:
2 di 2 (Piano su più livelli)
Box:
2
Posti auto:
2
Balconi:
1
Camere da letto:
4
Mostra tutto
Prezzo Prezzo
€ 260.000
Rata mutuo Rata mutuo
€ 1.240 / mese
Spese annue Spese annue
€ 0
Proponi il tuo prezzoProponi il tuo prezzo
Immobile valutato con T·Valuta

Classe Energetica

Questo immobile è esente da classe energetica
Anno di costruzione:
1956
Riscaldamento:
Autonomo
Tipo impianto:
A radiatori
Tipo alimentazione:
Metano

Ti interessa visionare l'immobile?

Fissa un appuntamento  Fissa un appuntamento

Richiedi informazioni

Clicca su Leggi per aprire l'informativa
* Questi campi sono obbligatori

Calcola il tuo mutuo

Semplice e senza impegno
Anticipo

( % )
Mutuo

( % )

pochi semplici passi

inserisci i tuoi dati
Questionario completato
Grazie per aver richiesto un appuntamento senza impegno con un nostro Consulente del Credito e Assicurativo.

Hai inserito correttamente tutti i dati necessari e a breve riceverai una e-mail con un link da convalidare per inviare i tuoi dati.
Affiliato
Studio Poggio Renatico Snc
P.zza del Popolo, 28/29 44028 Poggio Renatico (FE)

Il nostro staff


  • Marco Cottignoli
    Affiliato

  • Beatrice Cottignoli
    Responsabile

  • Martina Bonetti
    Collaboratrice

  • Anna Cottignoli
    Coordinatrice

  • Tommaso Grazia
    Collaboratore

  • Alessandro Giusti
    Collaboratore

  • Michela Rodofile
    Coordinatrice
P.zza del Popolo, 28/29 44028 Poggio Renatico (FE)
Zona: Poggio Renatico - Gallo - Coronella
Mostra su mappa
Orari: mattina 09.00-13.00 pomeriggio 15.30-19.30; sabato chiusura 13.00
Affiliato
Studio Poggio Renatico Snc
P.zza del Popolo, 28/29 44028 Poggio Renatico (FE)

2026 Tecnocasa Franchising S.p.A. - P. IVA 08365160152 - Via Monte Bianco 60/A 20089 Rozzano (MI). Ogni agenzia ha un proprio titolare ed è autonoma. Privacy policy | Policy utilizzo | Cookie policy